Ang grounding transpormer ay tinutukoy bilang grounding transpormer para sa maikli. Ayon sa daluyan ng pagpuno, ang transpormer ng saligan ay maaaring nahahati sa uri ng langis at tuyong uri; Ayon sa bilang ng mga phase, ang grounding transpormer ay maaaring nahahati sa tatlong-phase grounding transpormer at single-phase grounding transpormer. Ang pag-andar ng grounding transpormer ay upang magbigay ng isang artipisyal na neutral na punto para sa system na may hindi pinagbabatayan na neutral na punto, na kung saan ay maginhawa para sa paggamit ng arc suppression coil o maliit na resistance grounding mode, upang mabawasan ang capacitance current sa ground sa kaso ng grounding short circuit fault sa distribution network at pagbutihin ang power supply reliability ng distribution system.
Ang 6kV, 10kV at 35kV power grids sa power system ay karaniwang gumagamit ng neutral na ungrounded operation mode. Ang mababang boltahe na bahagi ng pangunahing transpormer sa grid ng kapangyarihan ay karaniwang konektado sa isang tatsulok na paraan, at walang neutral na punto na maaaring i-ground. Kapag ang isang single-phase grounding fault ay nangyari sa isang neutral na ungrounded system, ang line voltage triangle ay nananatiling simetriko. Ang power system ay maaaring magpatuloy sa pagbibigay ng kapangyarihan sa mga gumagamit sa loob ng 1 hanggang 2 oras, at ang capacitive current ay medyo maliit (mas mababa sa 10A), na hindi magiging sanhi ng pasulput-sulpot na arko. Maaaring awtomatikong mawala ang ilang transient grounding fault, na napakabisa para sa pagpapabuti ng pagiging maaasahan ng power supply at pagbabawas ng mga aksidente sa pagkawala ng kuryente. Gayunpaman, sa patuloy na pagpapalawak ng urban power grid at patuloy na pagtaas ng cable outgoing lines, ang capacitive current ng system sa ground ay tumataas nang husto, at ang capacitive current na dumadaloy sa fault point pagkatapos ng single-phase grounding ay malaki (higit sa 10A).
Ang arko ay hindi madaling patayin, madaling ma-excite ang ferromagnetic resonance overvoltage at makagawa ng intermittent arc light grounding overvoltage, na maaaring magdulot ng pagkasira ng insulation, trip the line at palawakin ang aksidente
Partikular:
Ang intermittent extinction at reignition ng single-phase grounding arc ay magbubunga ng arc grounding over-voltage na may amplitude hanggang 4U (U ang peak value ng normal na phase voltage) o mas mataas at mahabang tagal, na magdudulot ng malaking pinsala sa pagkakabukod ng mga de-koryenteng kagamitan at maging sanhi ng pagkasira sa mahinang pagkakabukod; Magdulot ng matinding pagkalugi.
Ang air dissociation na dulot ng tuluy-tuloy na arko ay sumisira sa pagkakabukod ng nakapaligid na hangin at madaling kapitan ng phase to phase short circuit.
Ang sobrang boltahe ng ferromagnetic resonance ay maaaring madaling masunog ang transformer ng boltahe at magdulot ng pinsala sa arrester, na maaaring maging sanhi ng pagsabog ng arrester. Ang mga kahihinatnan na ito ay seryosong nagbabanta sa pagkakabukod ng mga kagamitan sa grid ng kuryente at ilagay sa panganib ang ligtas na operasyon ng grid ng kuryente.
Upang mabawasan ang capacitive current sa lupa sa kaso ng single-phase grounding fault, kinakailangang mag-install ng arc suppression coil at iba pang compensation device sa neutral point ng transpormer. Samakatuwid, kinakailangan na manu-manong magtatag ng isang neutral na punto upang ang arc suppression coil ay maaaring konektado sa neutral na punto upang mabawasan ang grounding short-circuit breaking current at mapabuti ang pagiging maaasahan ng power supply ng system.
■ Kasalukuyang ginagamit sa tahanan at sa ibang bansa
Ang grounding transpormer sa China ay karaniwang gumagamit ng Z-type na mga kable (o zigzag na mga kable). Upang makatipid ng puwang sa pamumuhunan at substation, karaniwang idinaragdag ang pangatlong paikot-ikot sa grounding transformer upang palitan ang transpormer na ginagamit sa pagbibigay ng kuryente para sa kagamitang ginagamit sa substation. Ayon sa pambansang pamantayan ng Reactor, ang grounding mode ng grounding transpormer ay maaaring nahahati sa direktang saligan; Ito ay pinagbabatayan sa pamamagitan ng reactor, resistance at arc suppression coil. Ang direktang saligan ay hindi ginagamit sa Tsina, ngunit ang ilang mga departamento ng pananaliksik ng kuryente ay nagsimulang talakayin ang aspetong ito. Ang saligan na transpormer sa mga dayuhang bansa ay karaniwang gumagamit ng Z-type na koneksyon, na ginagamit para sa 10kV na ungrounded system at bumubuo ng grounding protection ng distribution network. Kapag ang system ay may grounding fault, ang grounding transformer ay nagpapakita ng mataas na impedance sa positive sequence at negatibong sequence current at mababang resistance sa zero sequence current, na ginagawang mapagkakatiwalaan ang proteksyon ng grounding.
■ Tatlong yugto ng grounding transpormer

Three phase grounding transformer Ang ganitong uri ng transpormer ay gumagamit ng Z-type na mga wiring (o zigzag wiring). Ang pagkakaiba sa mga ordinaryong transformer ay ang bawat phase coil ay nahahati sa dalawang grupo at sugat sa magnetic pole ng phase na ito sa kabaligtaran. Ang bentahe ng koneksyon na ito ay ang zero sequence magnetic flux ay maaaring dumaloy kasama ang magnetic pole, habang ang zero sequence magnetic flux ng mga ordinaryong transformer ay dumadaloy sa magnetic leakage circuit. Samakatuwid, ang zero sequence impedance ng Z-type grounding transformer ay napakaliit (mga 10 Ω), habang ang sa ordinaryong mga transformer ay mas malaki. Ayon sa mga regulasyon, ang kapasidad ng ordinaryong transpormer na may arc suppression coil ay hindi dapat lumampas sa 20% ng kapasidad ng transpormer. Ang Z-type na transpormer ay maaaring nilagyan ng arc suppression coil na may kapasidad na 90%~100%. Bilang karagdagan sa arc suppression coil, ang grounding transpormer ay maaari ding nilagyan ng pangalawang load, na maaaring palitan ang station transpormer, kaya nagse-save ng gastos sa pamumuhunan.
■ Single phase grounding transpormer

Single phase grounding transpormer Ang single phase grounding transpormer ay pangunahing ginagamit para sa generator na may neutral point at neutral point grounding resistance cabinet ng Satons transpormer upang mabawasan ang gastos at dami ng resistance cabinet.
■ Mga katangian ng paggawa
(1) Mababang zero sequence impedance upang matiyak ang output ng zero sequence kasalukuyang;
(2) Mataas na impedance ng paggulo upang mabawasan ang kasalukuyang walang-load;
(3) Mababang pagkawala ng walang-load upang makatipid ng pagkonsumo ng enerhiya para sa pang-araw-araw na operasyon.
■ Wiring mode
Koneksyon ni YNyn
Ang transpormer na may ganitong mode ng koneksyon sa pangkalahatan ay gumagamit ng tatlong yugto ng tatlong haligi na bakal na core, at ang neutral na punto sa mataas na boltahe na bahagi ay maaaring konektado sa arc suppression coil upang mapagtanto ang saligan. Gayunpaman, kapag ang single-phase grounded zero sequence current ay dumadaloy sa high-voltage side winding, ang nabuong zero sequence na magnetic potential ay hindi mabalanse ng pangalawang magnetic potential, at ang zero sequence na magnetic flux sa parehong direksyon ay hindi makakabuo ng loop sa ang tatlong haligi na iron core, upang ang isang malaking bilang ng zero sequence magnetic flux ay maaari lamang dumaan sa clamp, oil at oil tank body upang bumuo ng closed loop, kaya nagiging sanhi ng karagdagang pagkawala sa oil tank at clamp, na nagreresulta sa lokal na overheating, Ang paggamit ng kapasidad ng transpormer ay limitado. Ang mga nauugnay na regulasyon sa pagpapatakbo ng sektor ng kuryente ng China ay gumawa ng mga sumusunod na probisyon sa estado ng pagtatrabaho ng neutral point connection arc suppression coil ng YNyn connection transformer:
(1) Ang kapasidad ng arc suppression coil ay hindi dapat lumampas sa 20% ng rated capacity ng transpormer;
(2) Ang zero sequence voltage drop na nabuo ng zero sequence current na dumadaloy sa arc suppression coil sa transpormer ay hindi dapat lumampas sa 10% ng rated phase voltage;
Ang mode ng koneksyon ng YNd connection transpormer at arc suppression coil XL ay nailalarawan sa pamamagitan ng na ang triangular na koneksyon sa pangalawang bahagi ay maaaring magbigay ng isang closed path ng zero sequence current, kaya ang zero sequence reactance ay maliit. Bilang karagdagan, dahil balanse ang zero sequence magnetic potential ng primary at secondary windings sa bawat core column, maliit din ang zero sequence magnetic leakage. Gayunpaman, kapag ang YN connection winding ay nasa labas, ang zero sequence na karagdagang pagkawala na dulot sa tangke ng langis at iba pang mga bahagi ay hindi ganap na maiiwasan. Kapag ito ay konektado sa arc suppression coil, ang paggamit ng kapasidad nito ay magiging limitado pa rin. Ipinapakita ng pananaliksik sa dayuhang pagsubok na ang pinapayagang working mode ng YNd connected grounding transformer ay:

(1) Kapag ang pangalawang full load ay normal, ang kapasidad ng arc suppression coil na konektado sa gilid ng YN ay hindi lalampas sa 50% ng rated capacity ng transpormer;
(2) Kapag ang pangalawang load ay 50% lamang ng kapasidad ng transpormer sa mga ordinaryong panahon, ang kapasidad ng arc suppression coil ay maaaring katumbas ng rated capacity ng transpormer.
Bagama't ang pangalawang bahagi ng koneksyon na ito ay maaaring magbigay ng kuryente sa mga rehiyonal na load o sa substation mismo, ang paggamit nito ay magiging lubhang limitado dahil ang triangular na koneksyon ay mahirap magbigay ng kuryente sa hybrid power at mga gumagamit ng ilaw nang sabay.

YN, ang bukas na d connection ay konektado sa arc-suppression coil XL, na katulad ng YNd connection. Ang mode ng koneksyon ng open d ay maaaring konektado sa isang risistor o reaktor sa gilid ng bukas na tatsulok upang ayusin ang zero-sequence reactance ng transpormer, at ang koneksyon ng risistor ay maaari ring sugpuin ang ferromagnetic resonance ng network. Kung ang three-phase five column iron core ay pinagtibay, ang zero sequence impedance value ay maaari ding tumaas nang malaki, at posible pang tanggalin ang isang arc suppression coil, ngunit ang istraktura ay kumplikado at ang gastos ay tumaas. Bilang karagdagan, ang pangalawang paggamit ng bukas na tatsulok na koneksyon ay hindi maaaring matugunan ang mga pangangailangan ng power supply sa rehiyonal na mga load at self-use power, kaya ang paraan na ito ay hindi malawakang ginagamit.

Ang ZN, yn connection transpormer ay konektado sa arc suppression coil XL, na isang karaniwang mode ng koneksyon para sa grounding transpormer. Dahil ang zero sequence magnetic potential sa upper at lower half windings sa parehong iron core column ng zigzag connection method ay pareho lang ang laki at magkasalungat na direksyon, na sumasalungat sa isa't isa, ang zero sequence leakage flux ay nababawasan sa napakaliit na halaga. , upang ang zero sequence reactance value nito ay napakaliit, at ang kapasidad nito ay maaaring katumbas ng kapasidad ng konektadong arc suppression coil.
Ang grounding transpormer na malawakang ginagamit sa tahanan at sa ibang bansa ay pangunahing konektado sa ganitong paraan. Dahil ang paraan ng yn junction ay pinagtibay sa mababang boltahe na bahagi, maaari itong magbigay ng lokal na kapangyarihan o ang sariling paggamit ng kapangyarihan ng subistasyon sa parehong oras. Ang kapasidad ng mababang boltahe na bahagi ay karaniwang mas maliit kaysa sa mataas na boltahe na bahagi. Sa karamihan ng mga kaso, ang kapasidad ng mababang boltahe na bahagi ay nasa hanay na 80-200kVA.
Kahit na ang rate na kapasidad ng mataas na boltahe na bahagi ay maaaring katumbas ng kapasidad ng konektadong arc suppression coil, ang Z-shaped na koneksyon ay magkakaroon ng 1.15 beses na mas maraming mga liko kaysa sa Y-shaped na koneksyon, kaya ang aktwal na kapasidad ng grounding transpormer ay dapat maging 1.15 beses ng kapasidad ng arc suppression coil.
■ Prinsipyo ng paggawa

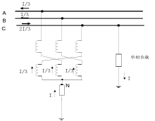
Ang working principle diagram ng grounding transformer sa kaso ng single-phase fault sa system ay inilalarawan ng karaniwang ZNyn wiring. Kapag ang grounding transpormer ay dumaan sa isang tiyak na laki ng zero sequence current sa panahon ng operasyon, ang kasalukuyang dumadaloy sa dalawang single-phase windings sa parehong iron core column ay nasa magkasalungat na direksyon at ang laki ay pantay, upang ang magnetic potential na nabuo ng Ang kasalukuyang zero sequence ay kabaligtaran lamang ng offset, upang ang zero sequence impedance ay napakaliit din.
Kapag nabigo ang grounding transpormer, ang neutral na punto ay maaaring dumaloy sa kasalukuyang kompensasyon. Dahil sa maliit na zero-sequence impedance, kapag ang zero-sequence current ay dumaan, ang impedance voltage drop na nabuo ay dapat kasing maliit hangga't maaari upang matiyak ang kaligtasan ng system. Dahil ang grounding transpormer ay may mga katangian ng mababang zero sequence impedance, kapag ang isang single-phase grounding fault ay nangyari sa phase C, ang phase C ground current I ay dumadaloy sa neutral na punto sa pamamagitan ng earth, at nahahati sa tatlong pantay na bahagi upang dumaloy sa ang grounding transpormer. Dahil ang mga three-phase na alon na dumadaloy sa grounding transpormer ay pantay, ang pag-aalis ng neutral na punto N ay nananatiling hindi nagbabago, at ang three-phase line boltahe ay nananatiling simetriko.
Gayunpaman, sa proseso ng pagmamanupaktura, ang mga pagliko at geometric na sukat ng upper at lower windings ng high-voltage winding ay hindi maaaring ganap na pantay, na ginagawang imposible para sa magnetic potential na nabuo ng zero sequence current na eksaktong ma-offset sa kabaligtaran. direksyon, at bumubuo pa rin ng isang tiyak na zero sequence impedance, karaniwang mga 6-10 Ω. Kung ikukumpara sa zero sequence impedance ng star connected transformer na 600 Ω, ang mga pakinabang nito ay maliwanag. Bilang karagdagan, ang zigzag grounding transpormer ay maaari ring gawin ang walang-load na kasalukuyang at walang-load na pagkawala bilang maliit hangga't maaari. Kung ikukumpara sa ordinaryong star connection transformer, ang bawat phase iron core ng zigzag connection transformer ay binubuo ng windings ng dalawang iron core column. Ayon sa vector diagram nito, kung ihahambing sa ordinaryong star connection transpormer, kailangan itong sugatan ng 1.16 beses nang higit pa kapag pareho ang boltahe. Malaki ang pagkakaiba ng amplitude ng zero sequence impedance at positive sequence impedance ng urban distribution network na may single-phase grounding sa ilalim ng neutral point resistance grounding mode. Kapag dumaloy ang three-phase positive at negative sequence currents, ang magnetic potential sa bawat iron core column ng grounding transformer ay ang kabuuan ng mga phasors ng magnetic potential ng dalawang windings ng magkakaibang phase sa iron core column. Ang magnetic potential sa tatlong iron core pillars ay isang grupo ng mga three-phase equilibrium na dami na may phase difference na 120 °. Ang magnetic flux na nabuo ay maaaring bumuo ng isang loop sa tatlong mga haligi ng bakal. Ang magnetic resistance ng magnetic circuit ay maliit, ang magnetic flux ay malaki, at ang sapilitan potensyal ay malaki, na nagpapakita ng isang malaking positibong sequence at negatibong sequence impedance; Samakatuwid, ang grounding transpormer ay may mga katangian ng malaking positibo at negatibong sequence impedance at maliit na zero sequence impedance.
■ Pangunahing teknikal na mga parameter
Upang matugunan ang mga pangangailangan ng arc suppression coil grounding compensation sa distribution network, at matugunan din ang mga pangangailangan ng substation power at lighting load, napili ang Z-type connection transformer, at ang pangunahing mga parameter ng grounding transpormer ay kailangang makatwirang itakda.
(1) Ang pangunahing kapasidad sa gilid ng grounding transpormer na may na-rate na kapasidad ay dapat tumugma sa kapasidad ng arc suppression coil. Ayon sa pagtutukoy ng kapasidad ng umiiral na arc suppression coil, inirerekomenda na itakda ang kapasidad ng grounding transpormer bilang 1.05-1.15 beses ng kapasidad ng arc suppression coil. Halimbawa, ang kapasidad ng grounding transpormer na nilagyan ng isang 200kVA arc suppression coil ay 215kVA.
(2) Kabuuang kasalukuyang dumadaloy sa pamamagitan ng neutral na punto ng transpormador sa kaso ng single-phase fault ng neutral point compensation current:

saan:
Ang U ay ang boltahe ng linya ng network ng pamamahagi (V); Ang Zx ay ang impedance ng arc suppression coil (Ω);
Ang Zd ay ang pangunahing zero sequence impedance ng grounding transpormer (Ω/phase);
Ang Zs ay ang impedance ng system (Ω);
Ang tagal ng neutral point compensation current ay kapareho ng sa arc suppression coil, na dapat ay 2 oras gaya ng tinukoy.
(3) Zero sequence impedance Zero sequence impedance ay isang mahalagang parameter ng grounding transpormer, na may mahalagang impluwensya sa proteksyon ng relay upang limitahan ang single-phase grounding short-circuit current at sugpuin ang overvoltage. Para sa zigzag (Z type) at star/open delta connected grounding transformers na walang secondary coils, mayroon lamang isang impedance, namely zero sequence impedance, upang matugunan ng manufacturing department ang mga kinakailangan ng power department.
(4) Ang pagkawala ay isang mahalagang parameter ng pagganap ng saligan na transpormer. Para sa saligan na transpormador na may pangalawang likaw, ang pagkawala ng walang-load nito ay maaaring maging katulad ng sa dobleng paikot-ikot na transpormer na may parehong kapasidad. Para sa pagkawala ng pagkarga, kapag ang pangalawang bahagi ay nasa buong operasyon ng pagkarga, ang pagkawala ng pagkarga ng pangunahing bahagi ay mas mababa kaysa sa dobleng paikot-ikot na transpormer na may parehong kapasidad bilang pangalawang bahagi dahil sa magaan na pagkarga ng pangunahing bahagi.
(5) Ayon sa pambansang pamantayan, ang pagtaas ng temperatura ng grounding transpormer ay ang mga sumusunod:
1) Ang pagtaas ng temperatura sa ilalim ng rate ng tuloy-tuloy na kasalukuyang ay dapat sumunod sa mga probisyon ng pambansang pamantayan para sa mga dry type na mga transformer ng pangkalahatang mga transformer ng kapangyarihan, ngunit ito ay higit sa lahat ay naaangkop sa mga saligan na mga transformer na may madalas na pagkarga sa pangalawang bahagi;
2) Kapag ang tagal ng short-time load current ay mas mababa sa 10s (pangunahin kapag ang neutral na punto ay konektado sa paglaban), ang pagtaas ng temperatura ay dapat sumunod sa mga probisyon ng pambansang pamantayang power transformer sa limitasyon ng pagtaas ng temperatura sa ilalim ng short circuit kundisyon;
3) Ang pagtaas ng temperatura ng grounding transformer at ang arc suppression coil kapag gumagana nang magkasama ay dapat sumunod sa mga probisyon sa pagtaas ng temperatura ng arc suppression coil: ang winding temperature na patuloy na dumadaloy sa rated current ay 80K, na pangunahing naaangkop sa ang star/open delta connection grounding transpormer; Para sa paikot-ikot na may maximum na oras ng daloy ng rate na kasalukuyang tinukoy bilang 2h, ang tinukoy na temperatura ay 100K.
KONTAKIN KAMI
Samantalahin ang aming walang kapantay na kaalaman at karanasan, nag-aalok kami sa iyo ng pinakamahusay na serbisyo sa pagpapasadya.
.
MAG-IWAN NG MENSAHE
Pakipuno at isumite ang form sa ibaba, makikipag-ugnayan kami sa iyo sa loob ng 48 oras, salamat!
REKOMENDADO
Ang lahat ng mga ito ay ginawa ayon sa pinakamahigpit na internasyonal na pamantayan. Ang aming mga produkto ay nakatanggap ng pabor mula sa parehong lokal at dayuhang pamilihan.